Στα Γενικά Αρχεία του Κράτους βρέθηκε ο πρώην Δήμαρχος Ανωγείων Σωκράτης Κεφαλογιάννης για μια προσωπική του έρευνα, κατά τη διάρκεια της οποίας βρήκε μπροστά του τις μελέτες και τα σχέδια των Αρχιτεκτόνων για την δημιουργία του 1954 του Σταυράκειου Γυμνασίου, αλλά και το 1963 με το Δεύτερο Δημοτικό σχολείο Ανωγείων στο Περαχώρι!

Ο Σωκράτης, έστειλε τα αρχεία αυτά στην Ανωγή μαζί με κάποιες σκέψεις του για την σημασία που έχουν για την πορεία της Εκπαίδευσης των Ανωγείων αλλά και για ιστορικούς λόγους. Όπως αναφέρει χαρακτηριστικά ο Σωκράτης: “Τα θεωρώ σημαντικά ούτως συ άλλος γιατί δεν ξέρω αν υπάρχουν καν στο αρχείο του Δήμου ή στα σχολεία.

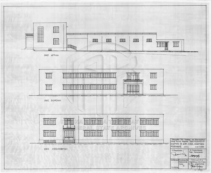
Είναι ευδιάκριτο στα σχέδια η αρχική εικόνα του “Σταυράκειου” Γυμνασίου και η σύγκριση με τις πολλές μετατροπές του με το σήμερα. Επίσης στο Δημοτικό στο Περαχώρι, όπως φαίνεται  από τα σχέδια, το κτιριακό συγκρότημα δεν ολοκληρώθηκε ποτέ όπως ήταν στα σχέδια..” καταλήγει.

Η μεγάλη δωρεά του Μιχάλη και της Λετίσιας Σταυράκη από την Αμερική, θεμελιώθηκε το 1954 και άλλαξε για πάντα την ιστορία του χωριού, δημιουργώντας στον ορεινό Μυλοπόταμο ένα πρότυπο Γυμνάσιο εξοπλισμένο με ότι χρειαζόταν κάτι πρωτοφανές τότε για ένα μικρό επαρχιακό και ορεινό χωριό της Ελλάδας.

Η αρχική πλάκα με την ονομασία ανέγραφε “Σταυράκειο Διδακτήριον Ανωγείων Μυλοποτάμου Κρήτης” και αυτή η μεγάλη δωρεά δημιούργησε επιστήμονες και ανθρώπους των γραμμάτων στα Ανώγεια και την ευρύτερη περιοχή και εξακολουθεί μέχρι και σήμερα να είναι ένας από τους βασικότερους πυλώνες προόδου των Ανωγείων.

Μια δεκαετία μετά ολοκληρώθηκε και το Δημοτικό σχολείο στο Περαχώρι όπου ξεκίνησε το 1963 με περισσότερα από 100 παιδιά. με τα σχέδια πάντως να μην αποτυπώνουν την τελική του μορφή καθώς όπως φαίνεται διαμορφώθηκε τελικά διαφορετικά από ότι στις μελέτες για άγνωστους λόγους.

Σύμφωνα με την έρευνα του Σωκράτη Κεφαλογιάννη, αρχιτέκτονας για το Γυμνάσιο 1951 – 1953 ήταν ο Πέτρος Νιαγάσας, ενώ για το “Β’ Δημοτικόν Σχολείον Ανωγείων Ρεθύμνης” 1963 αρχιτέκτονας ήταν ο Γ. Σταυρίδης.

Μοιραστείτε το

-

-->